イベント情報
【栃木県宇都宮市】構造見学会 開催!

中身が見える
販売型リアルモデルハウス
専門業者の断熱、気密、耐震のシミュレーション。
リアルモデルハウスの『すべて』をお見せします。
開催日時:2026年5月9日(土)・10日(日)/10:00〜17:00
開催場所:栃木県宇都宮市滝の原 ※詳しい会場地図は、ご予約時にお知らせいたします
内容:構造見学会
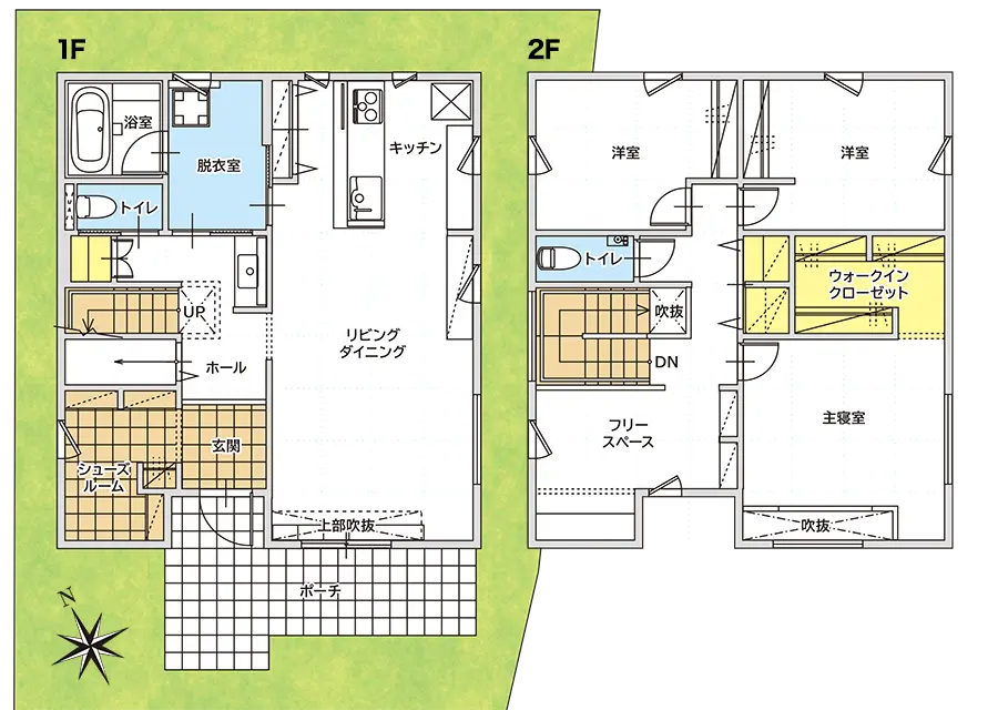
会場完成イメージギャラリー
POINT 01
断熱性|専門業者が命を吹き込む「140㎜の断熱壁」
2×6工法ならではの140㎜の厚い壁いっぱいに、「20k高性能グラスウール」を充填しています。
グラスウールは施工技術によって性能に大きな差が出ますが、北洲では断熱専門の業者が丁寧に施工します。
コンセント周りや角の部分など、細部まで隙間なく充填されているかをご確認ください。
「誰が施工しても同じ」ではない、プロの技が光る断熱工事は、将来の快適さを支えます。

POINT 02
気密性|「見えない隙間」を徹底的に塞ぐ職人のこだわり
優れた断熱性を活かすには、家の「隙間」をなくす気密が不可欠です。
現場では、窓枠や配管の貫通部など、空気が逃げやすい箇所がどのように処理されているかをご覧いただけます。
完成してからは絶対に確認できない気密へのこだわりの確認、北洲の家が「夏涼しく冬暖かい」理由です。職人の丁寧な仕事ぶりが、そのまま住まいの品質だと実感いただけます。

POINT 03
耐震性|シミュレーションで証明された「崩れない根拠」
北洲では、耐震シミュレーションツールを用いて、過去の大地震を想定し複数回検証した住宅をお届けします。
会場の家がどのように地震に耐えるのか、具体的なシミュレーション動画を公開します。
「震度7に耐えます」という言葉だけでなく、「この家が、地震でどう動くか」という根拠を現場の構造材と照らし合わせることで、家族の命を守る強さを確信に変えていただけます。
会場では、設置された制振装置「MIRAIE(ミライエ)」も実際にご覧いただけます。

アクセス
ご来場特典

北洲ハウジングとは
日々の暮らしを愉しんでいただくために、性能、機能、美しさを高い次元で叶えます。
1|最高グレードの断熱性能(HEAT20 G3)で、家族の『健康』を守ります。
2|耐震最高等級+繰り返しの地震にも強い『サステナブル耐震』で災害時に備えます。
3|自然エネルギーを最大限活用するパッシブ設計で、快適で『省エネ』な暮らしを提供します。
4|30年保証60年点検のメンテナンス体制で、『資産価値』を守ります。
5|35年以上前から現在の国の性能基準をクリア。未来に向けて『さらに上』を目指し続けています。
6|将来の返済額が軽減可能な『残価設定型住宅ローン』で、お客様のライフチェンジに備えます。
来場予約フォーム
ご来場予定が当日となる場合は支店 028-638-3831 か展示場 028-600-3477 までお電話にてご予約をお願いいたします。
予約状況によっては希望日時の変更をお願いする場合がございますことあらかじめご了承ください。
※送信後、完了画面が表示されるまで時間がかかる場合がございますが、そのままお待ちいただくようお願いいたします。