不動産情報一覧
さいたま市北区本郷町 建売分譲販売
販売価格 6,930万円(税込)
所在地|埼玉県さいたま市北区本郷町
建物面積|延床面積|102.79㎡(31.09坪)
ベルクさいたま宮原店 約1,070m(徒歩約14分)
セブンイレブンさいたま本郷町店 約620m(徒歩約8分)
泰平小学校 約970m(徒歩約13分)
※完成イメージパース
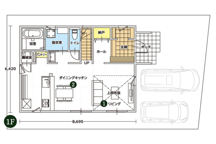
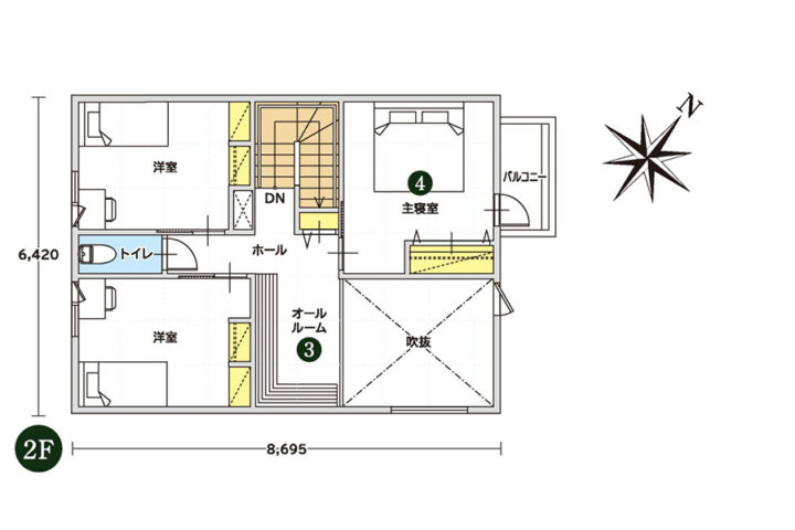
間取図


支払いシミュレーション
借入額6,500万円・頭金430万円・年利0.720%(金融機関:埼玉りそな銀行)
・変動金利40年
毎月返済額(年12回)119,917円
ボーナス時の加算額(年2回)216,129円
※この内容は令和7年12月25日現在のものです。適用される金利などはお客様の状況により異なります。

区画図

- No.2
- 131.00㎡(39.62坪)
- 6,930万円
※建物・土地・一部外構含む。 ※家具・家電・車は販売価格に含まれません。 ※建物:1階床面積|55.82㎡(16.99坪)/2階床面積|46.97㎡(14.20坪)/延床面積|102.79㎡(31.09坪) ※建築確認番号:第 東日本24-02756号
物件概要
| 価格 | 6,930万円(税込) |
|---|---|
| 所在地 | さいたま市北区本郷町 |
| 交通 | JR宇都宮線「東大宮駅」約1,300m(徒歩約17分) 埼玉新都心交通(ニューシャトル)「東宮原駅」約1,520m(徒歩約19分) |
| 総区画数 | 1区画 |
| 土地面積 | 131.00㎡(39.62坪) |
| 地目 | 宅地 |
| 床面積 | 1階床面積|55.82㎡(16.99坪)/2階床面積|46.97㎡(14.20坪)/延床面積|102.79㎡(31.09坪) |
| 接面道路 | 公道 |
| 接面方位・道路幅員 | 北東6.1m |
| 舗装 | アスファルト舗装 |
| 用途地域 | 第一種低層住居専用地域 |
| 建ぺい率 | 50% |
| 容積率 | 100% |
| 給排水 | 上下水道:公営水道/し尿・雑排水:公共下水 |
| 電気 | 自由化 |
| ガス | 都市ガス |
| 学区 | 泰平小・泰平中 |
| 都市計画 | 市街化区域 |
| その他の法令上の制限 | 法22条区域、景観法 |
| 取引態様 | 売主 |
| 備考 | 入居予定年月:2026年8月 |
| 売主 | 株式会社北洲(宅地建物取引業:国土交通大臣(5)第6277 号、建設業:特-3 第19409号 般-3 第19409号、(一社)岩手県宅地建物取引業協会会員) |
| 広告制作年月日 | 2026年1月26日 |
| 広告有効期限 | 2026年3月末日 |
周辺環境
| 小学校 | 泰平小学校 | 約970m(徒歩約13分) |
|---|---|---|
| 中学校 | 泰平中学校 | 約870m(徒歩約11分) |
| スーパー | ベルクさいたま宮原店 | 約1,070m(徒歩約14分) |
| コンビニ | セブンイレブンさいたま本郷町店 | 約620m(徒歩約8分) |
| コンビニ | ファミリーマートさいたま本郷南店 | 約680m(徒歩約9分) |
| ドラッグストア | スギ薬局大宮本郷町店 | 約620m(徒歩約8分) |
| ショップ | ダイソー | 約270m(徒歩約4分) |
| 郵便局 | 大宮本郷郵便局 | 約520m(徒歩約7分) |
| 電車 | JR宇都宮線「東大宮駅」 | 約1,300m(徒歩約17分) |
| シャトル | 埼玉新都市交通(ニューシャトル)「東宮原駅」 | 約1,520m(徒歩約19分) |
- 教育
- 医療
- 公共
- 商業
- 交通
- その他
※掲載の距離は全て地図上から計測したもので、徒歩分数は1分=80m、車分数は1分=450mで算出し端数を切り上げています。
交通環境

